Application Details
Application Reference Number:
PL/2024/0002602/HHA
Application Type:
HHA Householder application for planning permission for works or extension to a dwelling
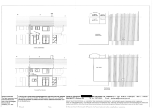
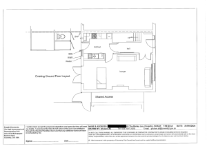
Proposal:
Erection of a single-storey rear extension.
Applicant:
Mr James Tyrrell
Agent:
Mr Ghulam Ali (Coventry City Council)
Location:
63 The Barley Lea, Coventry, CV3 1DX
Ward:
Lower Stoke
Parish / Community:
Officer:
Tom Cox
Decision Level:
Delegated decision
Application Status:
Decision Issued
Received Date:
23-12-2024
Valid Date:
07-01-2025
Expiry Date:
04-03-2025
Extension Of Time:
No
Extension Of Time Due Date:
Planning Performance Agreement:
No
Planning Performance Agreement Due Date:
Proposed Committee Date:
Actual Committee Date:
Decision Issued Date:
14-02-2025
Decision:
Granted Conditions
Appeal Reference:
Appeal Status:
Appeal External Decision:
Appeal External Decision Date:
