Application Details

Application Reference Number:
PL/2024/0912/FMAJ
Application Type:
FMAJ major application
Proposal:
Proposed Development of 30 Affordable Homes.
Applicant:
(none) N/A - Applicants are companies (Minster Property Group and Flagship Housing Group )
Agent:
Mr Jake Stentiford (Surface Planning)
Location:
Land West Of Chalk Lane, Narborough, Narborough,
Grid Reference:
574963, 312014
Ward:
Nar Valley
Parish / Community:
Narborough
Officer:
Chris Hobson
Decision Level:
Delegated decision
Application Status:
Decision Issued
Received Date:
09-10-2024
Valid Date:
09-10-2024
Expiry Date:
08-12-2025
Extension Of Time:
Yes
Extension Of Time Due Date:
08-12-2025
Planning Performance Agreement:
No
Planning Performance Agreement Due Date:
Proposed Committee Date:
Actual Committee Date:
Decision Issued Date:
08-12-2025
Decision:
Granted with conditions
Appeal Reference:
Appeal Status:
Appeal External Decision:
Appeal External Decision Date:
 

  Location

Map Preview Image

Documents

Document Type    Description    Thumbnail Date Document Added    Download/View
Decision Notice Decision notice Decision notice 08-12-2025 Download
Section 106 Public S106-Chalk-Lane-Narborough-completed-002-Redacted S106-Chalk-Lane-Narborough-completed-002-Redacted 08-12-2025 Download
Section 106 Public Draft s.106 Agreement Draft s.106 Agreement 02-12-2025 Download
Natural England Comments Natural England comments Natural England comments 20-11-2025 Download
Natural England Comments Natural England comments Natural England comments 19-11-2025 Download
Delegated/Committee Report Site-specific-HRA-06_11_25 Site-specific-HRA-06_11_25 06-11-2025 Download
Section 106 Public Draft s.106 agreement Draft s.106 agreement 06-11-2025 Download
Ecology Comments Ecology comments Ecology comments 04-11-2025 Download
Amended Plans/Documents Arboricultural-Implications-Assessment Arboricultural-Implications-Assessment 03-11-2025 Download
Amended Plans/Documents Habitat-and-Protected-Species-Survey-Oct-2025 Habitat-and-Protected-Species-Survey-Oct-2025 03-11-2025 Download
Amended Plans/Documents CLN-DCE-XX-XX-RP-T-01-Transport-Statement-Rev-02 CLN-DCE-XX-XX-RP-T-01-Transport-Statement-Rev-02 03-11-2025 Download
Amended Plans/Documents Flood Risk Assessment and SuDs Statement Flood Risk Assessment and SuDs Statement 03-11-2025 Download
BNG Biodiversity Net Gain Metric BNG Metric Sorry, no preview available 03-11-2025 Download
Amended Plans/Documents P24070-HWA-ZZ-XX-DR-C-5004-P01-Swale-Details P24070-HWA-ZZ-XX-DR-C-5004-P01-Swale-Details 03-11-2025 Download
Amended Plans/Documents P24070-HWA-ZZ-XX-DR-C-5003-P05-Adoptable-Road-Extents-Plan. P24070-HWA-ZZ-XX-DR-C-5003-P05-Adoptable-Road-Extents-Plan. 03-11-2025 Download
Amended Plans/Documents P24070-HWA-ZZ-XX-DR-C-5002-P13-Impermeable-Areas P24070-HWA-ZZ-XX-DR-C-5002-P13-Impermeable-Areas 03-11-2025 Download
Amended Plans/Documents P24070-HWA-ZZ-XX-DR-C-5001-P15-Proposed-Drainage-Strategy-Layout. P24070-HWA-ZZ-XX-DR-C-5001-P15-Proposed-Drainage-Strategy-Layout. 03-11-2025 Download
Amended Plans/Documents 23028-0207-P07-Housetype-FFFF-Floor-Plans-and-Elevations 23028-0207-P07-Housetype-FFFF-Floor-Plans-and-Elevations 03-11-2025 Download
Amended Plans/Documents 23028-0206-P06-Housetype-EE-Floor-Plans-and-Elevations 23028-0206-P06-Housetype-EE-Floor-Plans-and-Elevations 03-11-2025 Download
Amended Plans/Documents 23028-0205-P06-Housetype-DD-Floor-Plans-and-Elevations 23028-0205-P06-Housetype-DD-Floor-Plans-and-Elevations 03-11-2025 Download
Amended Plans/Documents 23028-0204-P05-Housetype-CC-Floor-Plans-and-Elevations 23028-0204-P05-Housetype-CC-Floor-Plans-and-Elevations 03-11-2025 Download
Amended Plans/Documents 23028-0203-P07-Housetype-BAB-Floor-Plans-and-Elevations 23028-0203-P07-Housetype-BAB-Floor-Plans-and-Elevations 03-11-2025 Download
Amended Plans/Documents 23028-0202-P07-Housetype-AAB-Floor-Plans-and-Elevations 23028-0202-P07-Housetype-AAB-Floor-Plans-and-Elevations 03-11-2025 Download
Amended Plans/Documents 23028-0201-P07-Housetype-AB-Floor-Plans-and-Elevations 23028-0201-P07-Housetype-AB-Floor-Plans-and-Elevations 03-11-2025 Download
Amended Plans/Documents 23028-0200-P05-Housetype-AAAA-Floor-Plans-and-Elevations 23028-0200-P05-Housetype-AAAA-Floor-Plans-and-Elevations 03-11-2025 Download
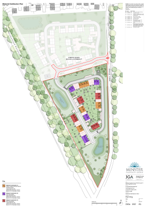
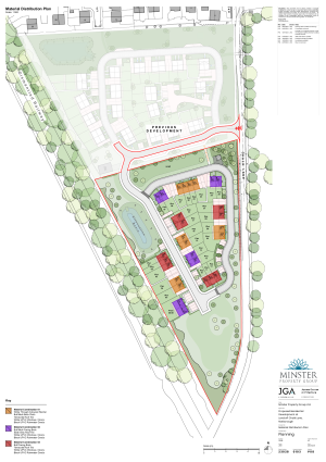
Amended Plans/Documents 23028-0103-P14-Material-Distribution-Plan 23028-0103-P14-Material-Distribution-Plan 03-11-2025 Download
Amended Plans/Documents 23028-0102-P18-Proposed-Site-Layout 23028-0102-P18-Proposed-Site-Layout 03-11-2025 Download
Amended Plans/Documents 24_1852_020F-Tree-Protection-Plan 24_1852_020F-Tree-Protection-Plan 03-11-2025 Download
Amended Plans/Documents 24_1852_004H-Landscape-Proposals-4-of-4 24_1852_004H-Landscape-Proposals-4-of-4 03-11-2025 Download
Amended Plans/Documents 24_1852_003H-Landscape-Proposals-3-of-4 24_1852_003H-Landscape-Proposals-3-of-4 03-11-2025 Download
Amended Plans/Documents 24_1852_002H-Landscape-Proposals-2-of-4 24_1852_002H-Landscape-Proposals-2-of-4 03-11-2025 Download
Amended Plans/Documents 24_1852_001H-Landscape-Proposals-1-of-4 24_1852_001H-Landscape-Proposals-1-of-4 03-11-2025 Download
BNG Biodiversity Net Gain Metric 2441-Chalk-Lane-Statutory-Biodiversity-Metric-Condition-Assessments23_07_24.xlsx 2441-Chalk-Lane-Statutory-Biodiversity-Metric-Condition-Assessments23_07_24.xlsx 13-10-2025 Download
Bat/Owl/Protected Species Survey 2441-Chalk-Lane-Habitat-and-Protected-Species-Survey 2441-Chalk-Lane-Habitat-and-Protected-Species-Survey 13-10-2025 Download
Supporting/Supplementary Information/Documents PCA-ENF158789-Chalk-Lane-Eval-V1 PCA-ENF158789-Chalk-Lane-Eval-V1 13-10-2025 Download
Amended Plans/Documents 23028-0103-P12-Material-Distribution-Plan 23028-0103-P12-Material-Distribution-Plan 13-10-2025 Download
Amended Plans/Documents Chalk-Lane-2-Open-Space Chalk-Lane-2-Open-Space 13-10-2025 Download
Amended Plans/Documents 23028-0102-P16-Proposed-Site-Layout 23028-0102-P16-Proposed-Site-Layout 13-10-2025 Download
Ecology Comments Ecology comments Ecology comments 17-09-2025 Download
Amended Plans/Documents 23028-0102-P15-Proposed-Site-Layout 23028-0102-P15-Proposed-Site-Layout 10-07-2025 Download
Amended Plans/Documents P24070-HWA-ZZ-XX-DR-C-5003-P04-ADOPTABLE-ROADS-EXTENTS-PLAN P24070-HWA-ZZ-XX-DR-C-5003-P04-ADOPTABLE-ROADS-EXTENTS-PLAN 10-07-2025 Download
Amended Plans/Documents P24070-HWA-ZZ-XX-DR-C-5002-P11-Impermeable-areas. P24070-HWA-ZZ-XX-DR-C-5002-P11-Impermeable-areas. 10-07-2025 Download
Amended Plans/Documents P24070-HWA-ZZ-XX-DR-C-5001-P12-Proposed-drainage-strategy-layout P24070-HWA-ZZ-XX-DR-C-5001-P12-Proposed-drainage-strategy-layout 10-07-2025 Download
Highway Comments Highway comments Highway comments 24-06-2025 Download
Historic Environment Service Comments Historic Environment Services comments Historic Environment Services comments 17-06-2025 Download
Transport Assessment CLN-DCE-XX-XX-RP-T-01-Transport-Statement-Rev-02 CLN-DCE-XX-XX-RP-T-01-Transport-Statement-Rev-02 10-06-2025 Download
Flood Risk Assessment 101290-Chalk-Lane-Supplementary-Infiltration-Tests 101290-Chalk-Lane-Supplementary-Infiltration-Tests 10-06-2025 Download
Amended Plans/Documents 24_1852_004F-Landscape-Proposals-4-of-4 24_1852_004F-Landscape-Proposals-4-of-4 10-06-2025 Download
Amended Plans/Documents 24_1852_003F-Landscape-Proposals-3-of-4 24_1852_003F-Landscape-Proposals-3-of-4 10-06-2025 Download
Amended Plans/Documents 24_1852_002F-Landscape-Proposals-2-of-4 24_1852_002F-Landscape-Proposals-2-of-4 10-06-2025 Download
Amended Plans/Documents 24_1852_001F-Landscape-Proposals-1-of-4 24_1852_001F-Landscape-Proposals-1-of-4 10-06-2025 Download
Bat/Owl/Protected Species Survey 2441-Chalk-Lane-Habitat-and-Protected-Species-Survey 2441-Chalk-Lane-Habitat-and-Protected-Species-Survey 10-06-2025 Download
Tree Survey/Landscape 24_1852_R1D-Arboricultural-Implications-Assessment 24_1852_R1D-Arboricultural-Implications-Assessment 10-06-2025 Download
Tree Survey/Landscape 24_1852_020D-Tree-Protection-Plan 24_1852_020D-Tree-Protection-Plan 10-06-2025 Download
BNG Biodiversity Net Gain Metric The-Statutory-Biodiversity-Metric-Calculation-Tool-Macro-enabled-tool-23_07_2024.xlsm Sorry, no preview available 10-06-2025 Download
Amended Plans/Documents P24070-HWA-ZZ-XX-RP-C-5001-1-v09-Flood-Risk-Assessment-and-SuDS P24070-HWA-ZZ-XX-RP-C-5001-1-v09-Flood-Risk-Assessment-and-SuDS 10-06-2025 Download
Amended Plans/Documents P24070-HWA-ZZ-XX-DR-C-5003-P02-Adoptable-Road-Extents-Plan P24070-HWA-ZZ-XX-DR-C-5003-P02-Adoptable-Road-Extents-Plan 10-06-2025 Download
Amended Plans/Documents P24070-HWA-ZZ-XX-DR-C-5002-P09-Impermeable-Areas P24070-HWA-ZZ-XX-DR-C-5002-P09-Impermeable-Areas 10-06-2025 Download
Amended Plans/Documents P24070-HWA-ZZ-XX-DR-C-5001-P10-Proposed-Drainage-Strategy-Layou P24070-HWA-ZZ-XX-DR-C-5001-P10-Proposed-Drainage-Strategy-Layou 10-06-2025 Download
Amended Plans/Documents 23028-0400-P02-Indicative-Street-Elevations 23028-0400-P02-Indicative-Street-Elevations 10-06-2025 Download
Amended Plans/Documents 23028-0207-P06-Housetype-FFFF-Floor-Plans-and-Elevations 23028-0207-P06-Housetype-FFFF-Floor-Plans-and-Elevations 10-06-2025 Download
Amended Plans/Documents 23028-0206-P05-Housetype-EE-Floor-Plans-and-Elevations 23028-0206-P05-Housetype-EE-Floor-Plans-and-Elevations 10-06-2025 Download
Amended Plans/Documents 23028-0205-P04-Housetype-DD-Floor-Plans-and-Elevations 23028-0205-P04-Housetype-DD-Floor-Plans-and-Elevations 10-06-2025 Download
Amended Plans/Documents 23028-0204-P03-Housetype-CC-Floor-Plans-and-Elevations 23028-0204-P03-Housetype-CC-Floor-Plans-and-Elevations 10-06-2025 Download
Amended Plans/Documents 23028-0203-P05-Housetype-BAB-Floor-Plans-and-Elevations 23028-0203-P05-Housetype-BAB-Floor-Plans-and-Elevations 10-06-2025 Download
Amended Plans/Documents 23028-0202-P05-Housetype-AAB-Floor-Plans-and-Elevations 23028-0202-P05-Housetype-AAB-Floor-Plans-and-Elevations 10-06-2025 Download
Amended Plans/Documents 23028-0201-P05-Housetype-AB-Floor-Plans-and-Elevations 23028-0201-P05-Housetype-AB-Floor-Plans-and-Elevations 10-06-2025 Download
Amended Plans/Documents 23028-0200-P03-Housetype-AAAA-Floor-Plans-and-Elevations 23028-0200-P03-Housetype-AAAA-Floor-Plans-and-Elevations 10-06-2025 Download
Amended Plans/Documents 23028-0103-P10-Material-Distribution-Plan 23028-0103-P10-Material-Distribution-Plan 10-06-2025 Download
Amended Plans/Documents 23028-0102-P14-Proposed-Site-Layout 23028-0102-P14-Proposed-Site-Layout 10-06-2025 Download
Supporting/Supplementary Information/Documents Applicants FV Rebuttal -250416-Land-at-Chalk-Lane-Narborough-AV-Rebuttal-V2-inc-appendices Applicants FV Rebuttal -250416-Land-at-Chalk-Lane-Narborough-AV-Rebuttal-V2-inc-appendices 10-06-2025 Download
Supporting/Supplementary Information/Documents CP Viability Report - 2025-04-01-Chalk-Lane-Report CP Viability Report - 2025-04-01-Chalk-Lane-Report 10-06-2025 Download
Supporting/Supplementary Information/Documents CP Viability Appraisal - 2025-04-01-Chalk-Lane-Appraisal CP Viability Appraisal - 2025-04-01-Chalk-Lane-Appraisal 10-06-2025 Download
Supporting/Supplementary Information/Documents Applicants FVA - 241211-Land-at-Chalk-Lane-Narborough-VA-V1-combined Applicants FVA - 241211-Land-at-Chalk-Lane-Narborough-VA-V1-combined 10-06-2025 Download
Obligations Officer Comments, NCC Planning Obligations Comments Planning Obligations Comments 21-02-2025 Download
Highway Comments Highway Comments Highway Comments 20-12-2024 Download
Ecology Comments Ecology Comments Ecology Comments 16-12-2024 Download
Anglian Water Comments Planning Report Planning Report 04-12-2024 Download
Historic Environment Service Comments Historic Environment Officer Comment Historic Environment Officer Comment 02-12-2024 Download
Natural England Comments Natural England Comments Natural England Comments 02-12-2024 Download
Environmental Health Comments EHO Report EHO Report 25-11-2024 Download
Flood Risk Officer Comments LLFA Response LLFA Response 22-11-2024 Download
Tree Survey/Landscape Arboricultural Implications Assessment (ISL Associates), dated 12.09.2024 Sorry, no preview available 21-11-2024 Download
Tree Survey/Landscape Drg. No: 24.1852.020, Rev. A - Tree Protection Plan, dated 10.09.2024 Sorry, no preview available 21-11-2024 Download
Flood Risk Assessment Flood Risk Assessment and SuDS Statement (HWA Ltd), dated September 2024 Flood Risk Assessment and SuDS Statement (HWA Ltd), dated September 2024 21-11-2024 Download
Tree Survey/Landscape Drg. No: 24.1857.010, Rev. A - Tree Constraints Plan, dated 10.09.2024 Sorry, no preview available 21-11-2024 Download
Other Plans Drg. No: P24070-HWA-ZZ-XX-DR-C-5002, Rev. P06 - Impermeable Areas Plan, dated 16.09.2024 Drg. No: P24070-HWA-ZZ-XX-DR-C-5002, Rev. P06 - Impermeable Areas Plan, dated 16.09.2024 21-11-2024 Download
Contaminated Land Documents Phase 1 and 2 Geo-Environmental Report Part 2 (Groundsure), dated 26.04.2024 Phase 1 and 2 Geo-Environmental Report Part 2 (Groundsure), dated 26.04.2024 21-11-2024 Download
Other Plans Drg. No: P24070-HWA-ZZ-XX-DR-C-5001, Rev. P06 - Proposed Drainage Strategy Layout, dated 16.09.2024 Drg. No: P24070-HWA-ZZ-XX-DR-C-5001, Rev. P06 - Proposed Drainage Strategy Layout, dated 16.09.2024 21-11-2024 Download
Contaminated Land Documents Phase 1 and 2 Geo-Environmental Report Part 1 (Dice Environmental), dated 28.05.2024 Phase 1 and 2 Geo-Environmental Report Part 1 (Dice Environmental), dated 28.05.2024 21-11-2024 Download
Transport Assessment Transport Statement (Dice), dated April 2024 Transport Statement (Dice), dated April 2024 21-11-2024 Download
Heritage Statement Heritage Summary Statement (BWB Consulting Ltd), dated May 2023 Heritage Summary Statement (BWB Consulting Ltd), dated May 2023 21-11-2024 Download
Design & Access Statement Planning Statement & Design and Access Statement (Surface Planning), dated September 2024 Planning Statement & Design and Access Statement (Surface Planning), dated September 2024 21-11-2024 Download
Other Plans Drg. No: 24.1852.004, Rev. C - Detailed Landscape Proposals 4 of 4, dated 12.09.2024 Sorry, no preview available 21-11-2024 Download
Supporting/Supplementary Information/Documents Housing Needs Assessment (CNB Housing, dated November 2023) Housing Needs Assessment (CNB Housing, dated November 2023) 21-11-2024 Download
Other Plans Drg. No: 24.1852.003, Rev. C - Detailed Landscape Proposals 3 of 4, dated 12.09.2024 Sorry, no preview available 21-11-2024 Download
Other Plans Drg. No: 24.1852.002, Rev. C - Detailed Landscape Proposals 2 of 4, dated 12.09.2024 Sorry, no preview available 21-11-2024 Download
Other Plans Drg. No: 24.1852.001, Rev. C - Detailed Landscape Proposals 1 of 4, dated 12.09.2024 Sorry, no preview available 21-11-2024 Download
Elevation Plans Drg. No: 0400, Rev. P02 - Indicative Street Elevations, dated 30.04.2024 Drg. No: 0400, Rev. P02 - Indicative Street Elevations, dated 30.04.2024 21-11-2024 Download
Other Plans Drg. No: 0207, Rev. P02 - Proposed Floor Plans and Elevations (House Type FFFF), dated 30.04.2024 Drg. No: 0207, Rev. P02 - Proposed Floor Plans and Elevations (House Type FFFF), dated 30.04.2024 21-11-2024 Download
Other Plans Drg. No: 0206, Rev. P02 - Proposed Floor Plans and Elevations (House Type EE), dated 30.04.2024 Drg. No: 0206, Rev. P02 - Proposed Floor Plans and Elevations (House Type EE), dated 30.04.2024 21-11-2024 Download
Other Plans Drg. No: 0205, Rev. P02 - Proposed Floor Plans and Elevations (House Type DD), dated 30.04.2024 Drg. No: 0205, Rev. P02 - Proposed Floor Plans and Elevations (House Type DD), dated 30.04.2024 21-11-2024 Download
Other Plans Drg. No: 0204, Rev. P02 - Proposed Floor Plans and Elevations (House Type CC), dated 30.04.2024 Drg. No: 0204, Rev. P02 - Proposed Floor Plans and Elevations (House Type CC), dated 30.04.2024 21-11-2024 Download
Other Plans Drg. No: 0203, Rev. P03 - Proposed Floor Plans and Elevations (House Type BAB), dated 12.09.2024 Drg. No: 0203, Rev. P03 - Proposed Floor Plans and Elevations (House Type BAB), dated 12.09.2024 21-11-2024 Download
Other Plans Drg. No: 0202, Rev. P03 - Proposed Floor Plans and Elevations (House Type AAB), dated 12.09.2024 Drg. No: 0202, Rev. P03 - Proposed Floor Plans and Elevations (House Type AAB), dated 12.09.2024 21-11-2024 Download
Other Plans Drg. No: 0200, Rev. P02 - Proposed Floor Plans and Elevations (House Type AAAA), dated 30.04.2024 Drg. No: 0200, Rev. P02 - Proposed Floor Plans and Elevations (House Type AAAA), dated 30.04.2024 21-11-2024 Download
Other Plans Drg. No: 0201, Rev. P03 - Proposed Floor Plans and Elevations (House Type AB), dated 12.09.2024 Drg. No: 0201, Rev. P03 - Proposed Floor Plans and Elevations (House Type AB), dated 12.09.2024 21-11-2024 Download
Other Plans Drg. No: 0103, Rev. P08 - Material Distribution Plan, dated 24.09.2024 Drg. No: 0103, Rev. P08 - Material Distribution Plan, dated 24.09.2024 21-11-2024 Download
Location/Site/Block Plans Drg. No: 0102, Rev. P10 - Proposed Site Layout Plan, dated 24.09.2024 Drg. No: 0102, Rev. P10 - Proposed Site Layout Plan, dated 24.09.2024 21-11-2024 Download
Location/Site/Block Plans Drg. No: 0101, Rev. P03 - Existing Site Layout Plan, dated 24.09.2024 Drg. No: 0101, Rev. P03 - Existing Site Layout Plan, dated 24.09.2024 21-11-2024 Download
Location/Site/Block Plans Drg. No: 0100, Rev. P03 - Location Plan, dated 24.09.2024 Drg. No: 0100, Rev. P03 - Location Plan, dated 24.09.2024 21-11-2024 Download
Application Forms/Certificates (public/redacted) ApplicationFormRedacted.pdf ApplicationFormRedacted.pdf 21-11-2024 Download